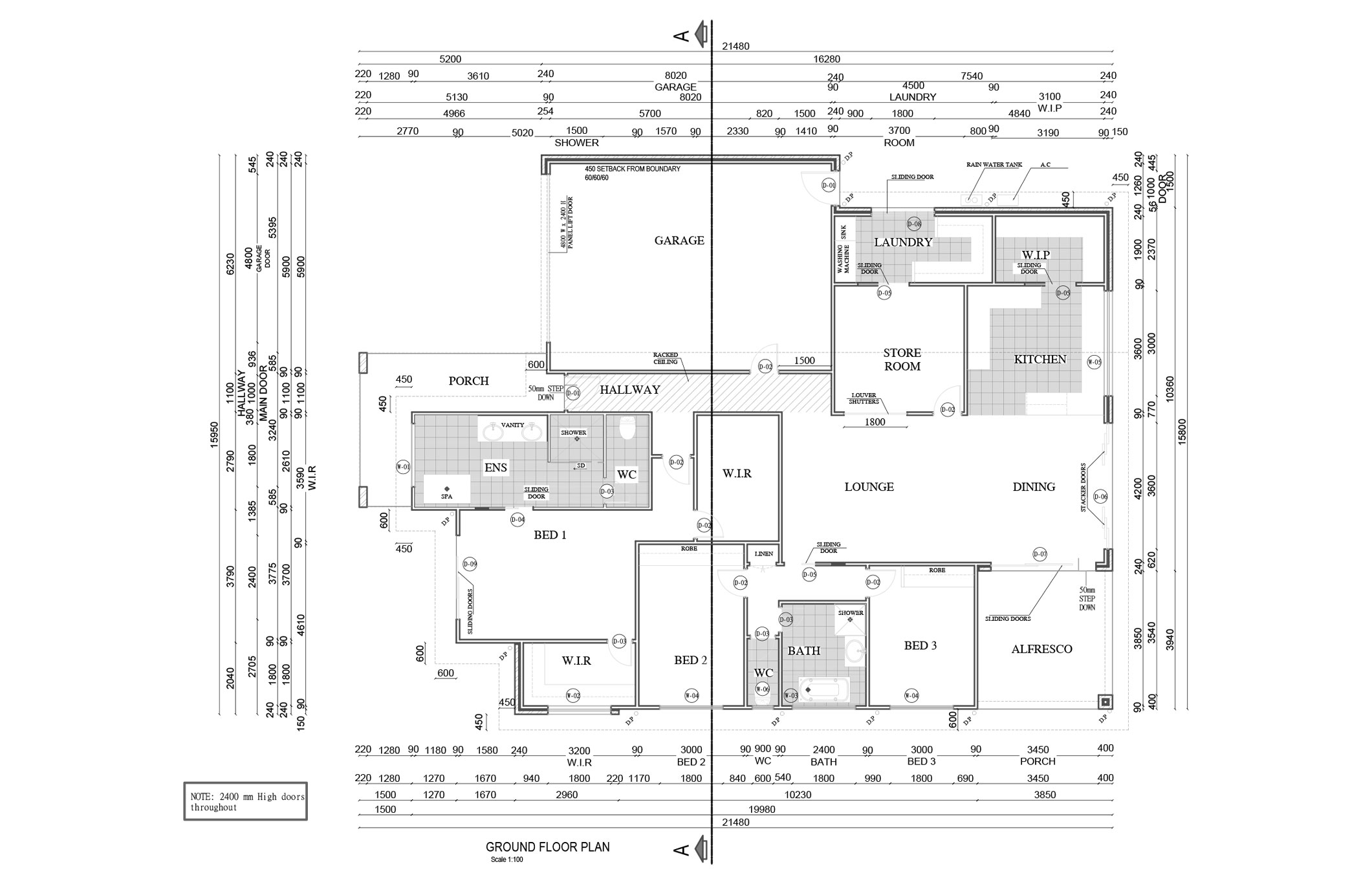
Project Design
Speed Meets Quality in Every Home We Build
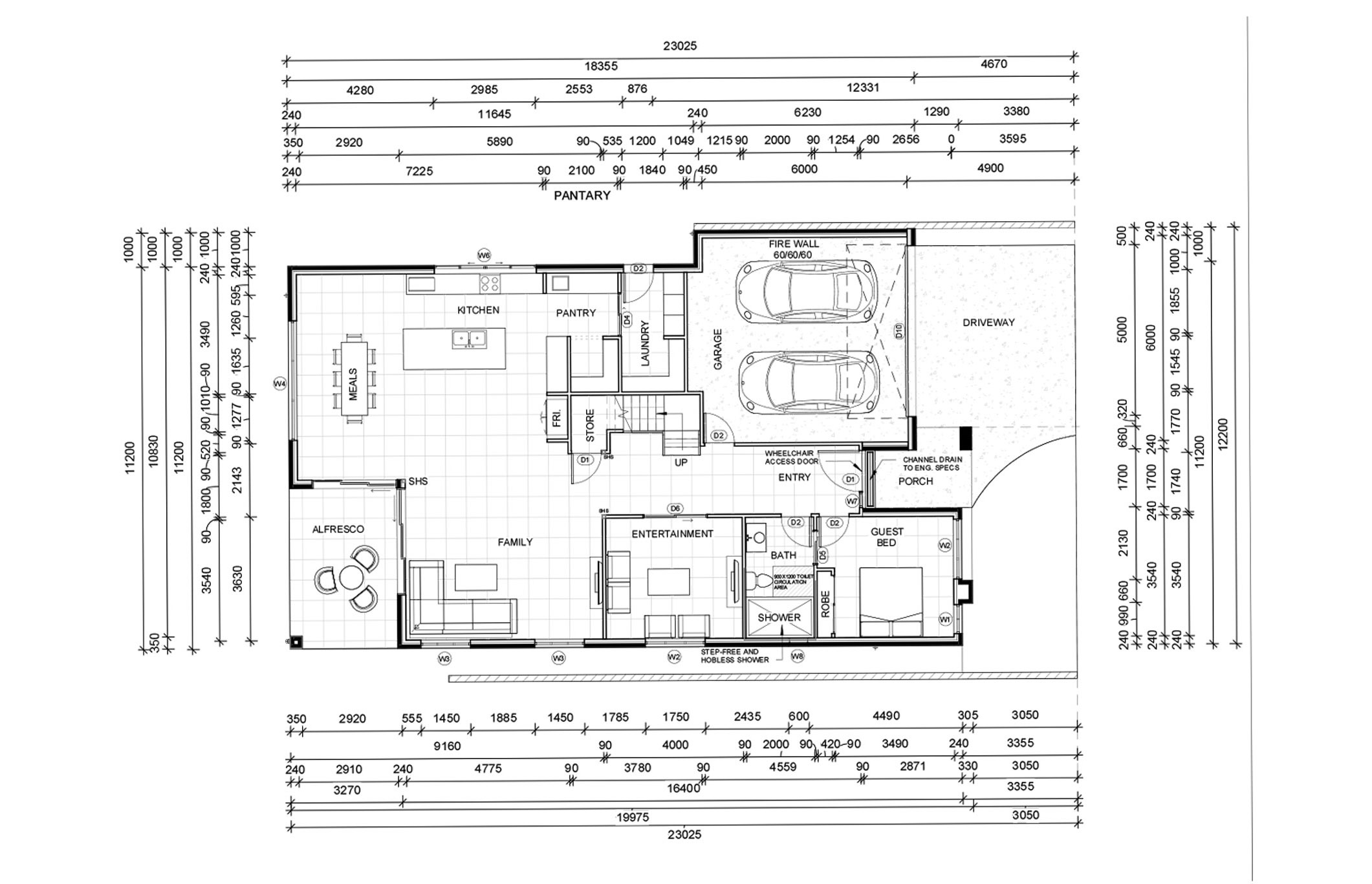
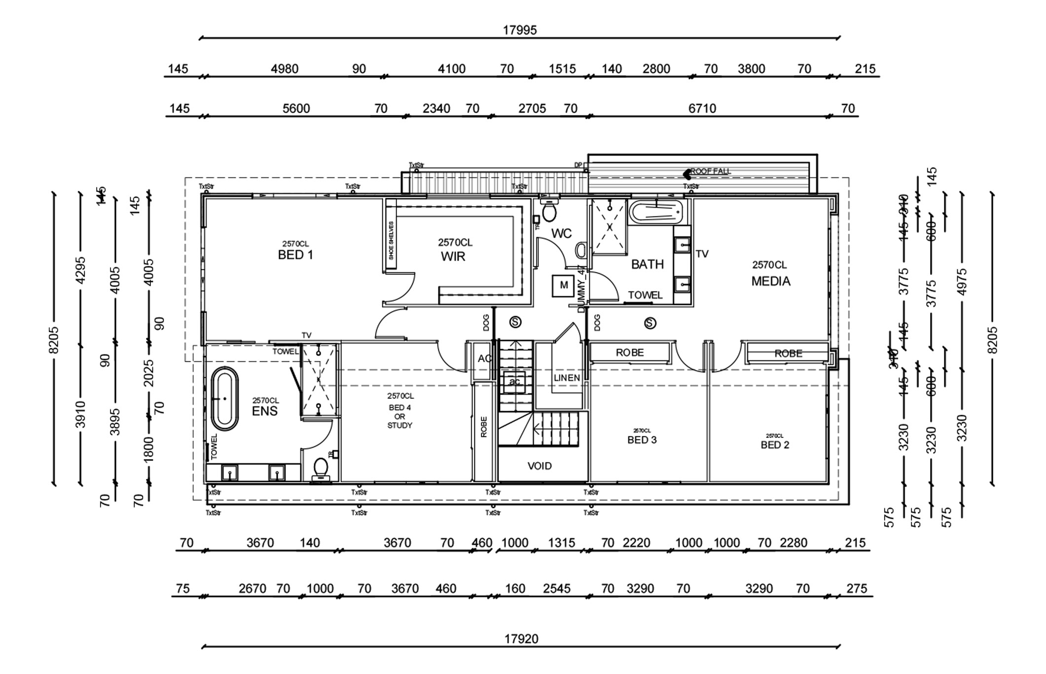
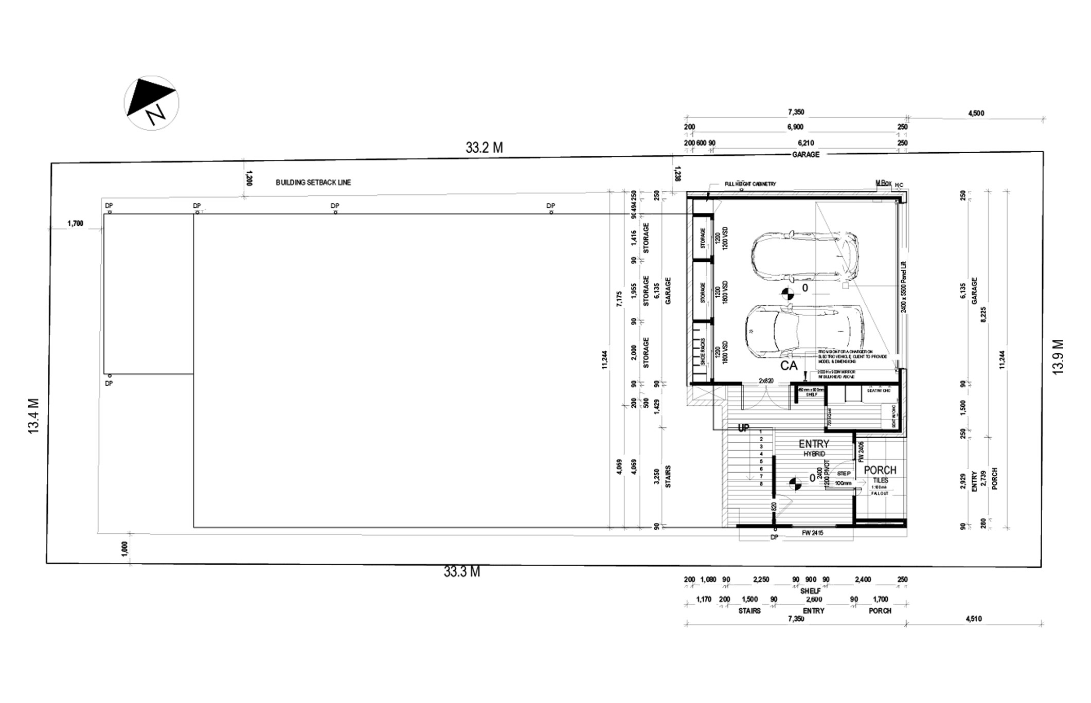
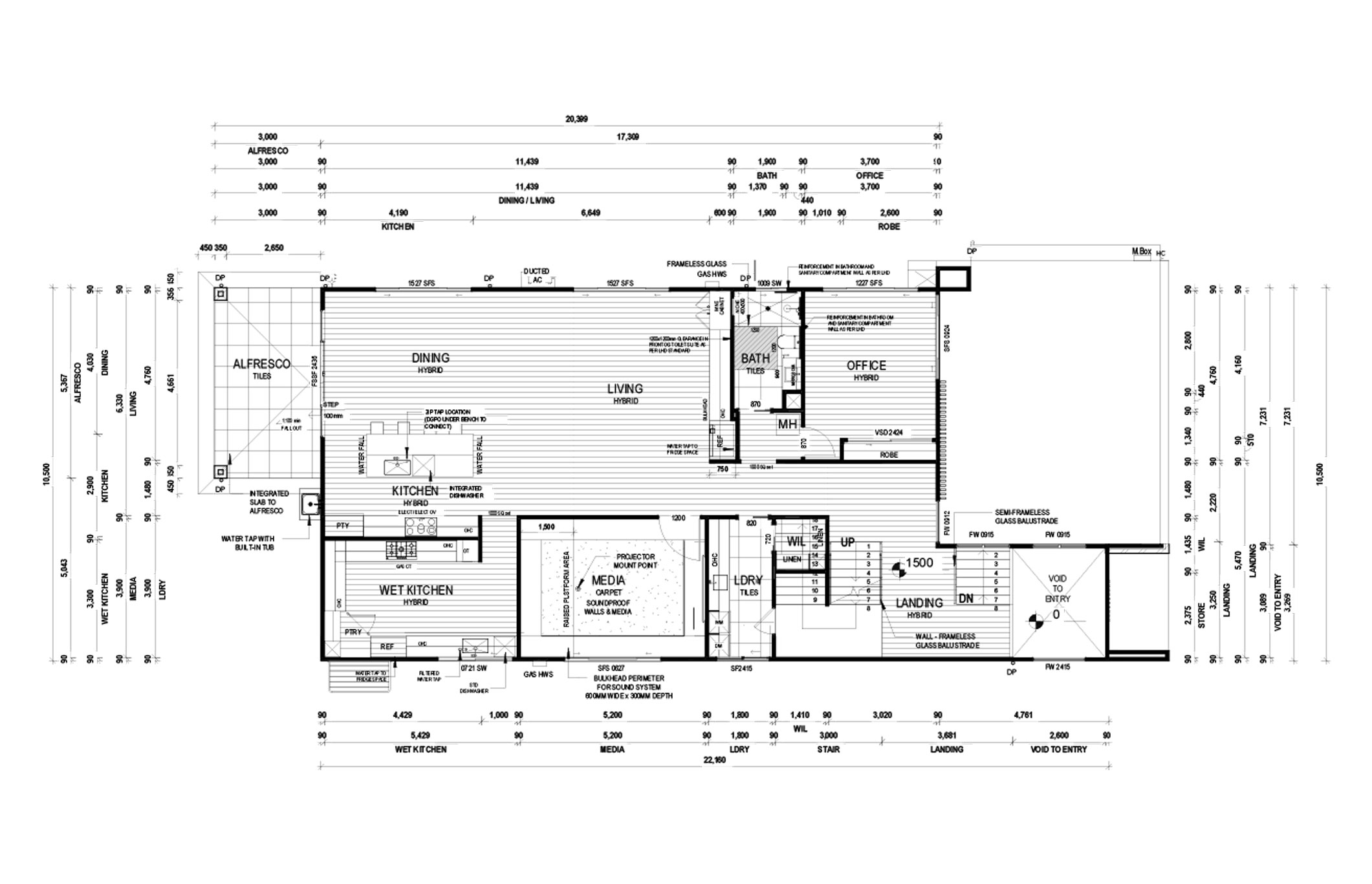
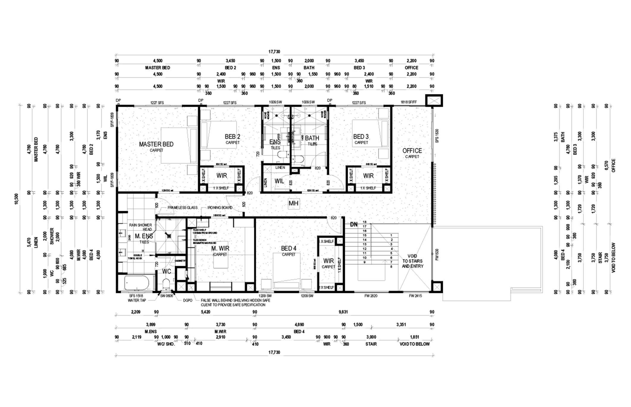
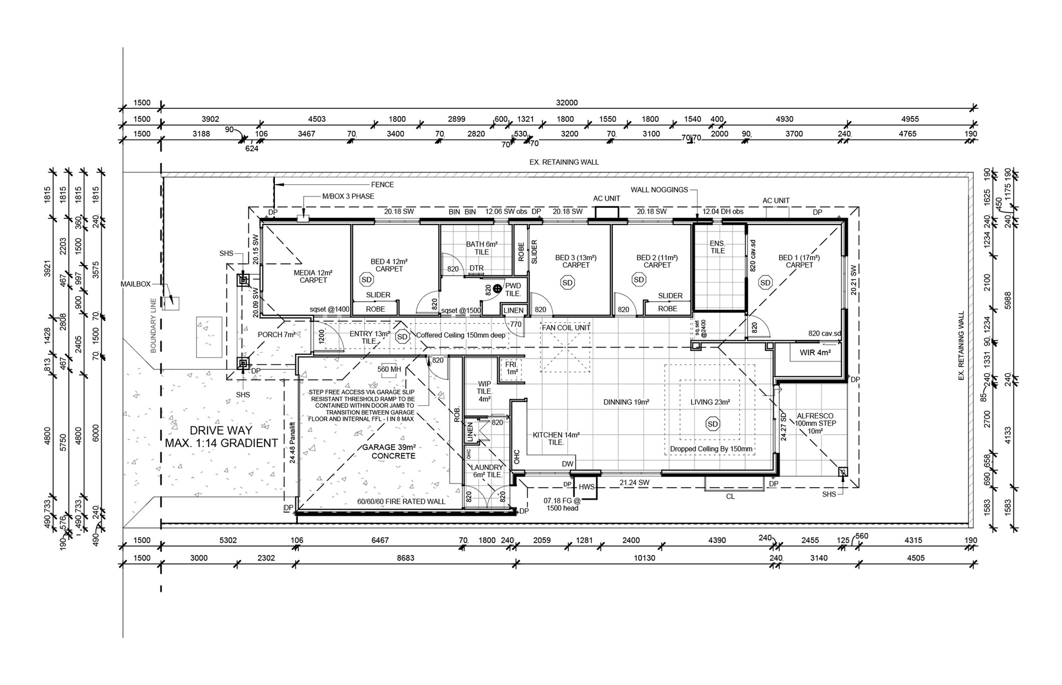
The Haven
- 4 Beds
- 2 Baths
- 2 Cars
Area Schedule
- Min. Plot Width Req.
- House Front Width
- Covered Area
- Alfresco
- Porch
- Living
- 14m
- 11.6m
- 274m²
- 10m²
- 7m²
- 23m²
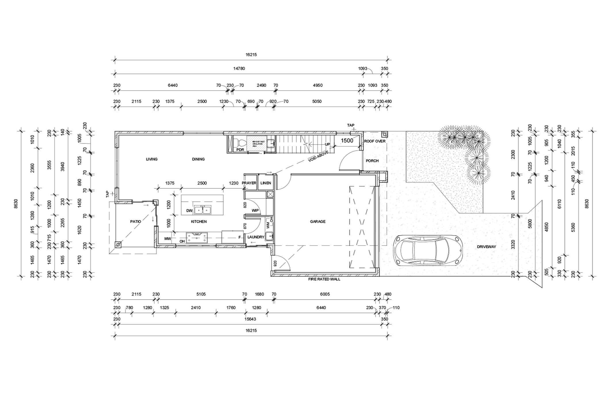
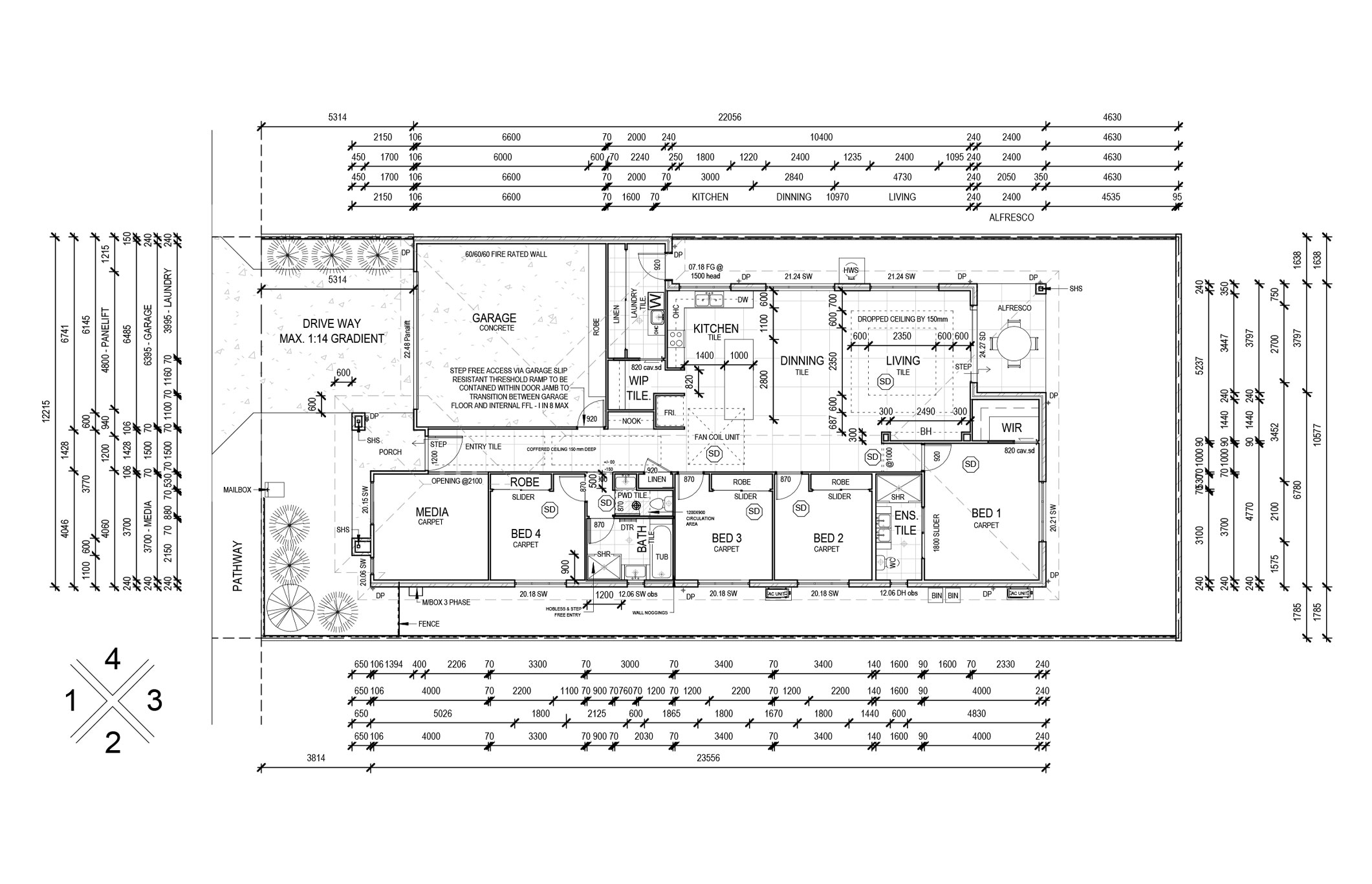
Serenity House
- 4 Beds
- 3 Baths
- 2 Cars
Area Schedule
- Min. Plot Width Req.
- House Front Width
- Covered Area
- Alfresco
- Porch
- Living
- 14m
- 10.8m
- 225m²
- 11m²
- 06m²
- 23m²
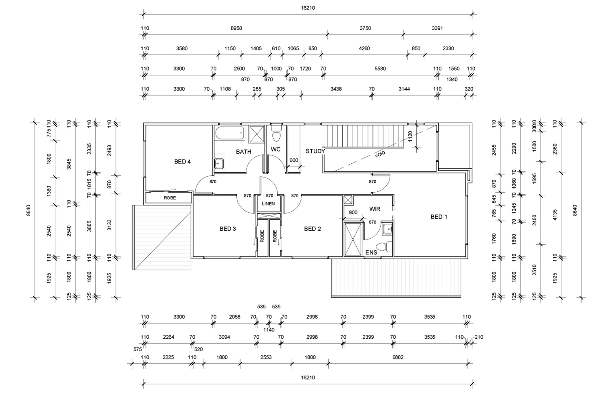
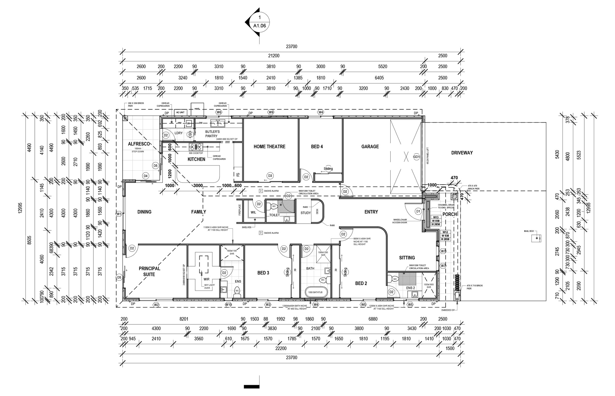
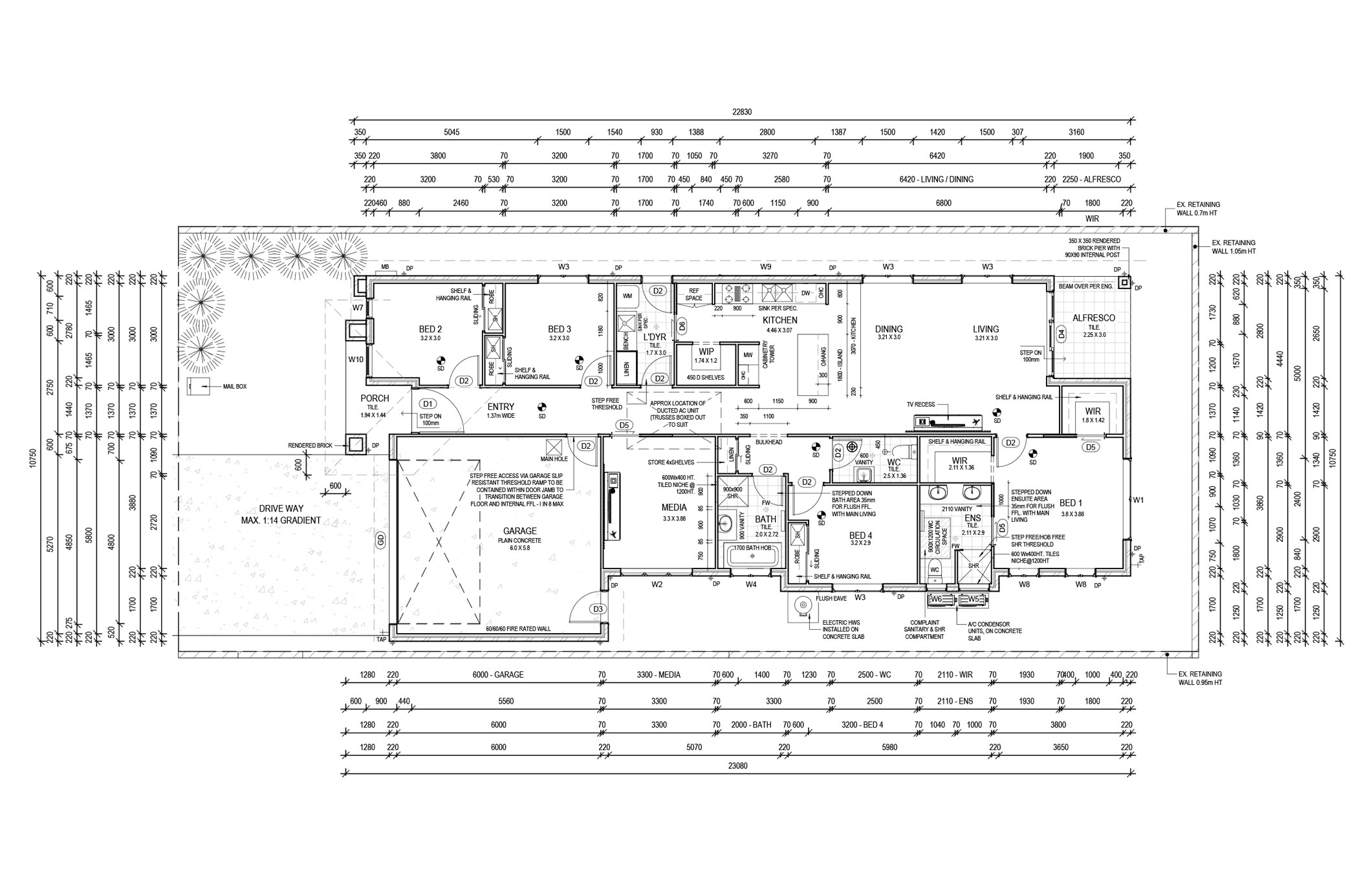
The Willow Retreat
- 4 Beds
- 3 Baths
- 2 Cars
Area Schedule
- Min. Plot Width Req.
- House Front Width
- Covered Area
- Alfresco
- Porch
- Living
- 18m
- 13m
- 294m²
- 12m²
- 14m²
- 18m²
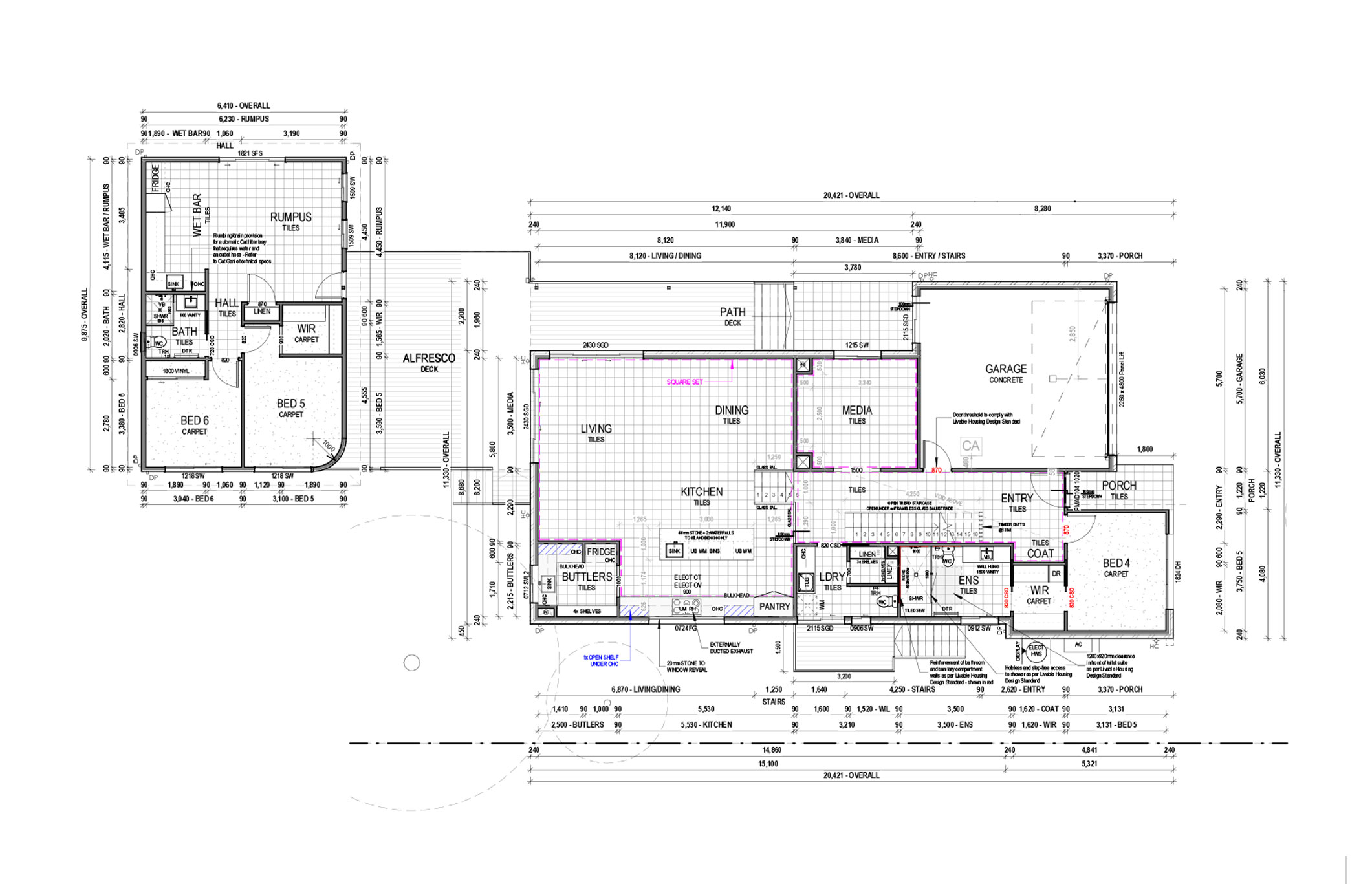
Aurora Abode
- 8 Beds
- 4 Baths
- 2 Cars
Area Schedule
- Min. Plot Width Req.
- House Front Width
- Covered Area
- Alfresco
- Porch
- Living
- 20m
- 16.7m
- 358m²
- 00m²
- 04m²
- 14m²
The Summit Residence
- 4 Beds
- 2 Baths
- 2 Cars
Area Schedule
- Min. Plot Width Req.
- House Front Width
- Covered Area
- Alfresco
- Porch
- Living
- 18m
- 14m
- 112m²
- 12m²
- 04m²
- 14m²
Elysian Living
- 3 Beds
- 2 Baths
- 2 Cars
Area Schedule
- Min. Plot Width Req.
- House Front Width
- Covered Area
- Alfresco
- Porch
- Living
- 22m
- 15.9m
- 276.14m²
- 15.5m²
- 18.30m²
- 18.9m²
The Artisan
- 5 Beds
- 4 Baths
- 2 Cars
Area Schedule
- Min. Plot Width Req.
- House Front Width
- Covered Area
- Alfresco
- Porch
- Living
- 27m
- 14.3m
- 231.4m²
- 21.2m²
- 11.25m²
- 23m²
Coastal Edge
- 5 Beds
- 2 Baths
- 2 Cars
Area Schedule
- Min. Plot Width Req.
- House Front Width
- Covered Area
- Alfresco
- Porch
- Living
- 27m
- 19.5m
- 187.9m²
- 36.7m²
- 7.9m²
- 18.7m²
The Urban Nest
- 4 Beds
- 2 Baths
- 2 Cars
Area Schedule
- Min. Plot Width Req.
- House Front Width
- Covered Area
- Alfresco
- Porch
- Living
- 10m
- 8.64m
- 121.9m²
- 6.18m²
- 3.99m²
- 73.8m²
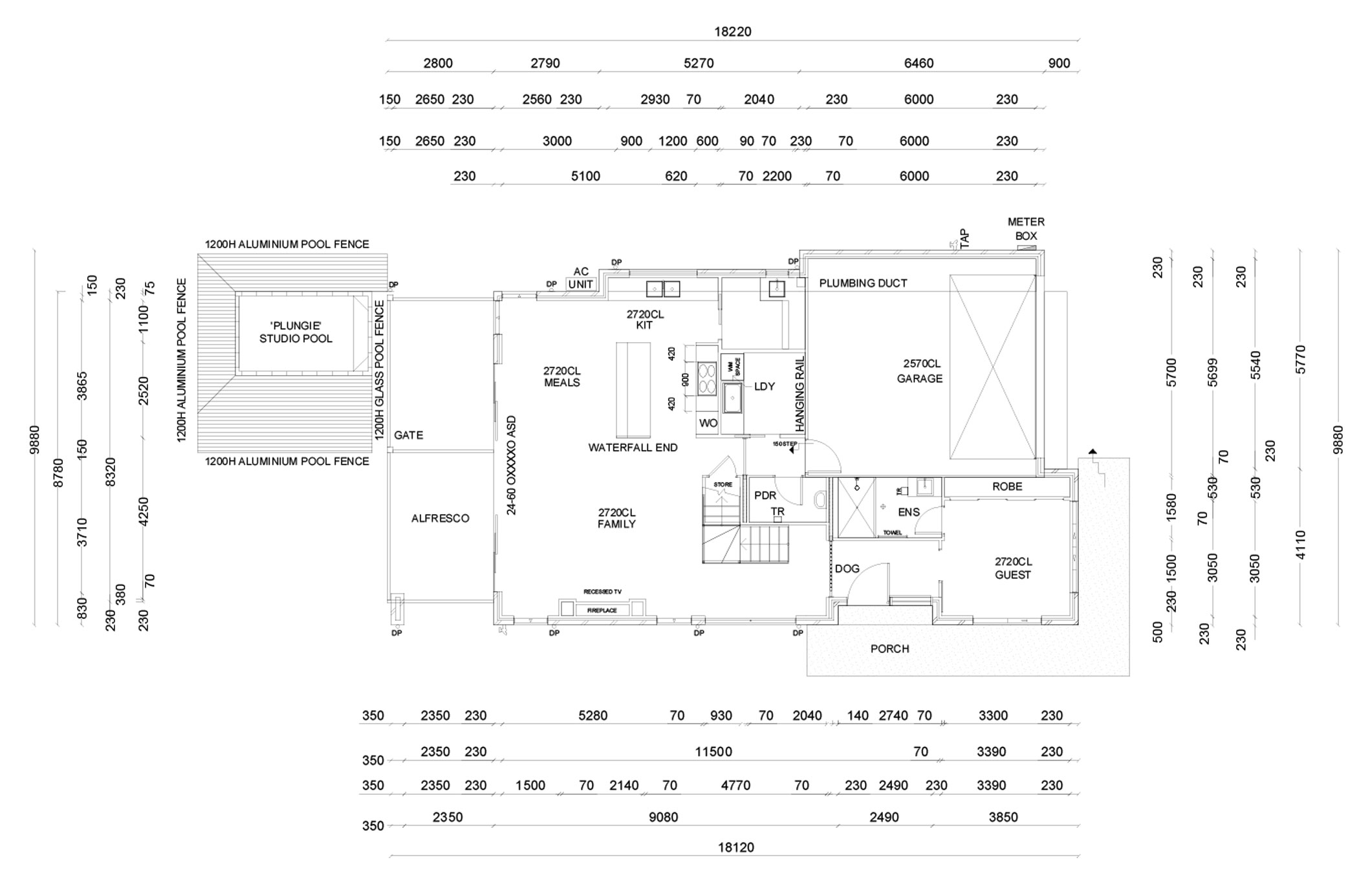
The Grove House
- 5 Beds
- 3 Baths
- 2 Cars
Area Schedule
- Min. Plot Width Req.
- House Front Width
- Covered Area
- Alfresco
- Porch
- Living
- 12m
- 9.88m
- 312.4m²
- 24.5m²
- 1.25m²
- 20m²
The Elemental
- 4 Beds
- 4 Baths
- 2 Cars
Area Schedule
- Min. Plot Width Req.
- House Front Width
- Covered Area
- Alfresco
- Porch
- Living
- 14m
- 11.24m
- 477.7m²
- 16.10m²
- 5.13m²
- 23m²
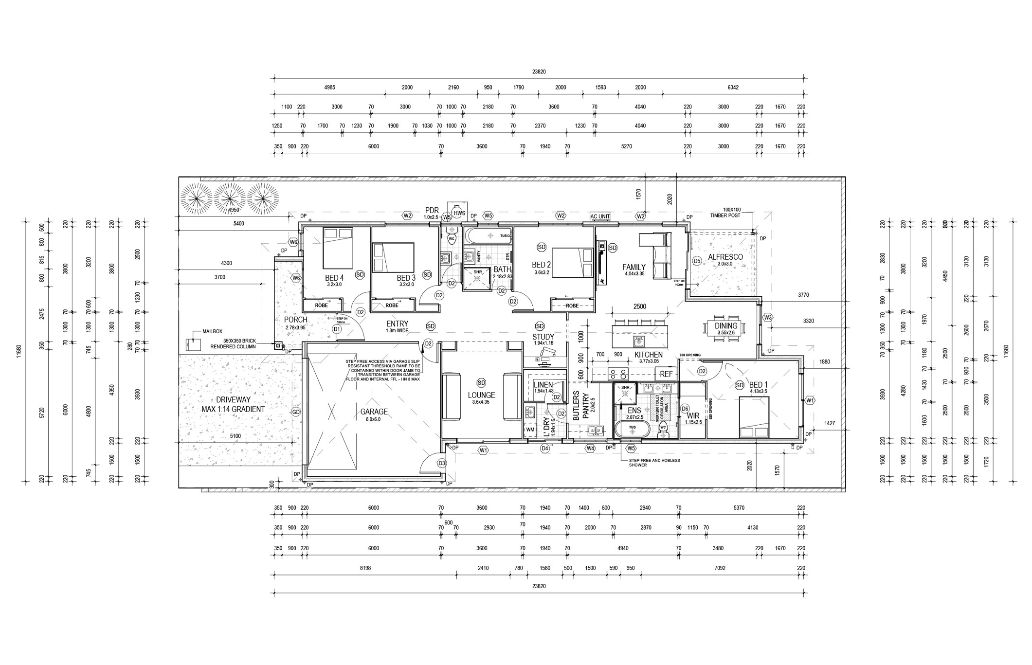
Solace Estate
- 4 Beds
- 2 Baths
- 2 Cars
Area Schedule
- Min. Plot Width Req.
- House Front Width
- Covered Area
- Alfresco
- Porch
- Living
- 12.5m
- 10.75m
- 215m²
- 07m²
- 02m²
- 10m²
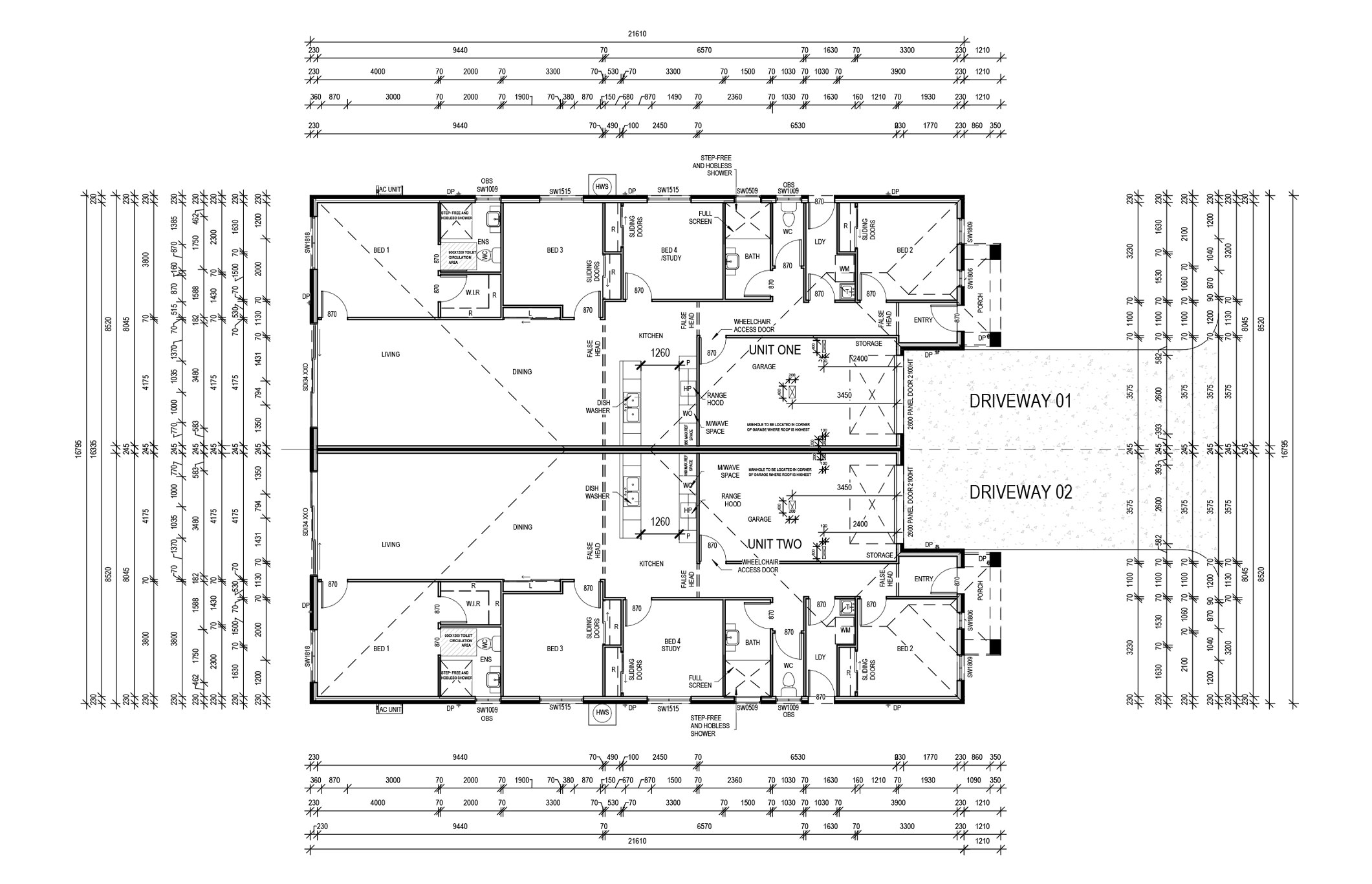
The Horizon
- 4 Beds
- 2 Baths
- 2 Cars
Area Schedule
- Min. Plot Width Req.
- House Front Width
- Covered Area
- Alfresco
- Porch
- Living
- 14m
- 11.6m
- 228m²
- 09m²
- 07m²
- 16m²
The Oakstone
- 4 Beds
- 2 Baths
- 2 Cars
Area Schedule
- Min. Plot Width Req.
- House Front Width
- Covered Area
- Alfresco
- Porch
- Living
- 14m
- 12.2m
- 260m²
- 10m²
- 07m²
- 24m²
Casa Nova
- 4 Beds
- 4 Baths
- 2 Cars
Area Schedule
- Min. Plot Width Req.
- House Front Width
- Covered Area
- Alfresco
- Porch
- Living
- 27m
- 11m
- 461m²
- 41m²
- 4.7m²
- 26m²














